Studio
Riconoscimenti
Partner
Pubblicazioni
Architetture
Selezione
Regesto
In corso
Temi
Scritti
Disegni
Modelli
Video
Contatti
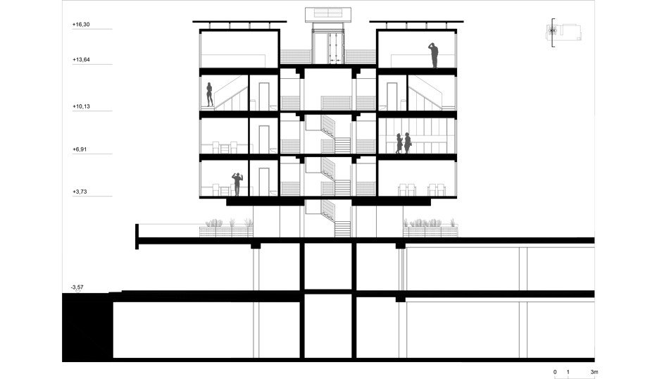
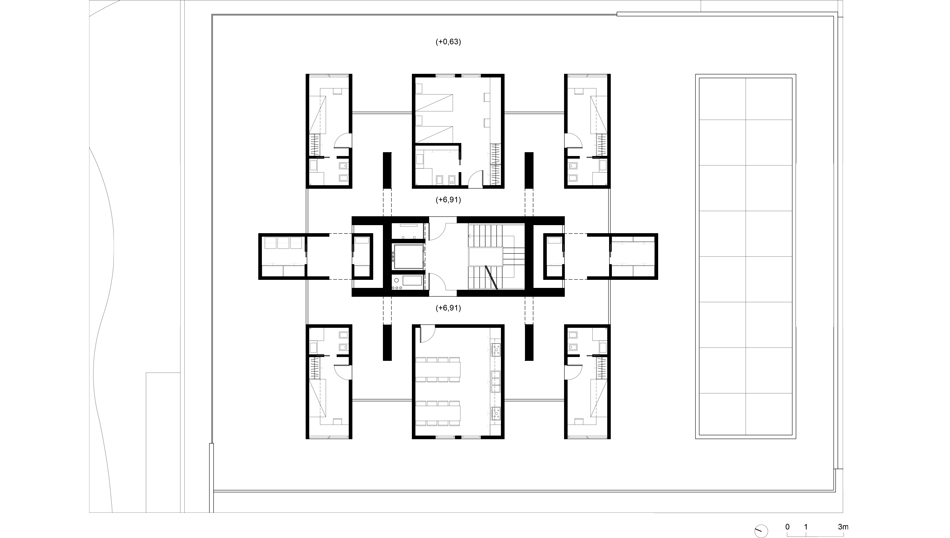
CO-LIVING_ONE
1
/ 17