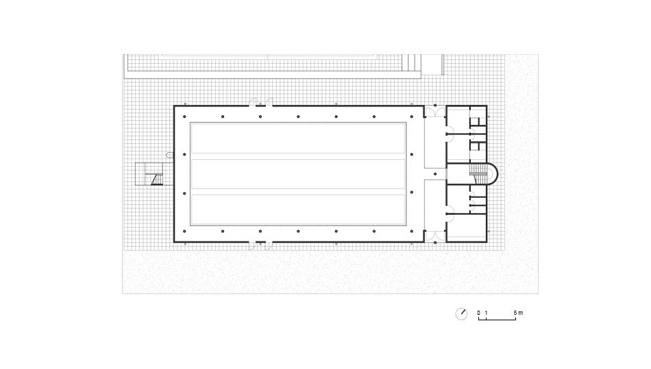
Il bocciodromo, previsto a completamento di un’area sportiva periferica, presenta un impianto volumetrico semplice, caratterizzato esternamente dal ritmo regolare dei pannelli in lamiera zincata e, internamente, da una struttura in carpenteria metallica in vista. L’edificio è organizzato su due livelli di cui il superiore a ballatoio per favorire la partecipazione del pubblico bocciofilo. Una galleria vetrata, che ricalca il collegamento pedonale con l’abitato a monte, relaziona, sia visivamente che funzionalmente, il vano riservato alla pratica sportiva con il blocco dei servizi oltre che con una piccola caffetteria ricavata in quota.
Bocciodromo
tipologia
progetto
luogo
Perugia, Piccione
committente
Comune di Perugia
progetto architettonico
HOFLAB (Paolo Belardi), Sergio Berti, Renato di Nunno, Enrica Rasimelli
cronologia
progetto 1985
pubblicazioni
tipologia
progetto
luogo
Perugia, Piccione
committente
Comune di Perugia
progetto architettonico
HOFLAB (Paolo Belardi), Sergio Berti, Renato di Nunno, Enrica Rasimelli
cronologia
progetto 1985
pubblicazioni
Paolo Belardi, “Architetture 1984-2000, Quattroemme, Perugia 2000, p. 16-17
Un bocciodromo pensato come spazio polifunzionale, in “T Sport”, 3 (1988), pp. 224-227
Paolo Belardi, Le Mauvais Architecte, in “Artinumbria”, 6 (1985), p. 17