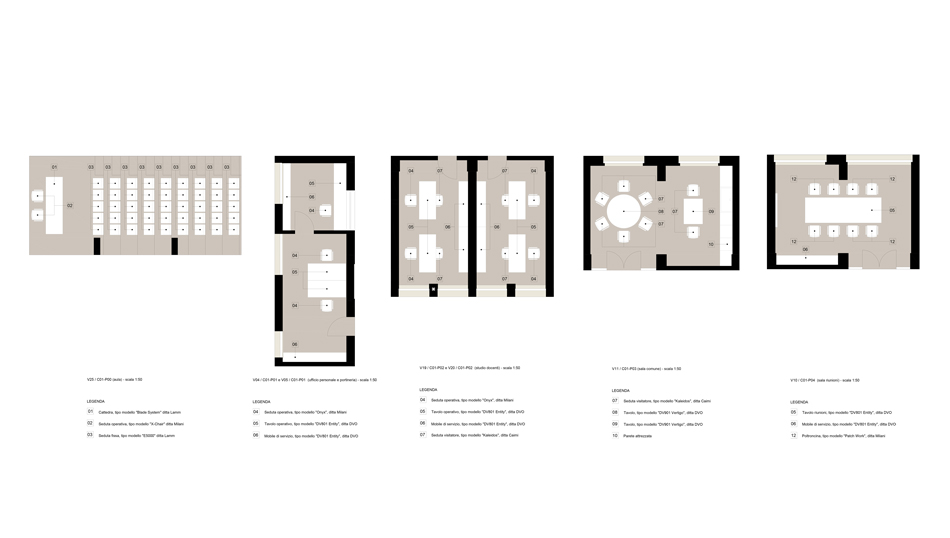
Il progetto, redatto in conformità al masterplan del Polo universitario di via del Giochetto e volto alla conversione funzionale di un edificio ospedaliero realizzato negli anni Settanta del Novecento su progetto di Giuseppe Nicolosi, prevede una piattaforma bio-tecnologica articolata in tre blocchi omogenei: un blocco destinato agli uffici, un blocco destinato a laboratori didattici e di ricerca, un blocco destinato a locali tecnologici e laboratori di ricerca con elevati livelli di bio-sicurezza. In tal senso, il progetto prevede il restauro esterno, al fine di valorizzare un campione esemplare dell’architettura italiana recente, e la ristrutturazione interna, al fine di attribuire una nuova identità€ realizzando spazi conformati secondo i principi del wayfinding design. Il progetto non prevede addizioni, ma si limita alla demolizione chirurgica di alcune superfetazioni con l’obiettivo di favorire la contestualizzazione paesaggistico-ambientale e il rispetto delle caratteristiche architettoniche originarie. Le facciate sono contrassegnate dall’adozione di sistemi di controllo bioclimatico degli spazi confinati attraverso l’impiego di un sistema di schermatura frangisole in sostituzione delle tapparelle e dall’introduzione di fonti energetiche rinnovabili.
PIATTAFORMA BIO-TECNOLOGICA
restauro e risanamento conservativo dell’ex padiglione W del polo universitario di via del Giochetto
tipologia
progetto
luogo
Perugia
committente
Ripartizione Tecnica, Università degli Studi di Perugia
progetto definitivo
architettonico e coordinamento della sicurezza
UNIPG – Ripartizione Tecnica (Luca Palma)
strutturale
Andrea Ficara
impianti termoidraulici ed elettrici e acustica
UNIPG – Ripartizione Tecnica (Riccardo Felicini)
collaborazione scientifica
architettura e idraulica
UNIPG – DICA (Bruno Brunone – responsabile scientifico, Paolo Belardi, Valeria Menchetelli, Silvia Meniconi, Caterina Capponi, Felice Lombardi, Cristina Passeri, Jessica Perugini,
Giulia Pucci)
impianti e acustica
UNIPG – DI (Francesco Castellani – responsabile scientifico, Ermanno Cardelli)
interior design
HOFLAB (Simone Bori, Matteo Scoccia)
computazione
UNIPG – Ripartizione Tecnica (Berardino Buonforte, Marco Bartoccini, Riccardo Felicini, Marco Lucrezi, Fabio Presciutti, Laura Volpi)
cronologia
progetto, 2020
restauro e risanamento conservativo dell’ex padiglione W del polo universitario di via del Giochetto
tipologia
progetto
luogo
Perugia
committente
Ripartizione Tecnica, Università degli Studi di Perugia
progetto definitivo
architettonico e coordinamento della sicurezza
UNIPG – Ripartizione Tecnica (Luca Palma)
strutturale
Andrea Ficara
impianti termoidraulici ed elettrici e acustica
UNIPG – Ripartizione Tecnica (Riccardo Felicini)
collaborazione scientifica
architettura e idraulica
UNIPG – DICA (Bruno Brunone – responsabile scientifico, Paolo Belardi, Valeria Menchetelli, Silvia Meniconi, Caterina Capponi, Felice Lombardi, Cristina Passeri, Jessica Perugini,
Giulia Pucci)
impianti e acustica
UNIPG – DI (Francesco Castellani – responsabile scientifico, Ermanno Cardelli)
interior design
HOFLAB (Simone Bori, Matteo Scoccia)
computazione
UNIPG – Ripartizione Tecnica (Berardino Buonforte, Marco Bartoccini, Riccardo Felicini, Marco Lucrezi, Fabio Presciutti, Laura Volpi)
cronologia
progetto, 2020